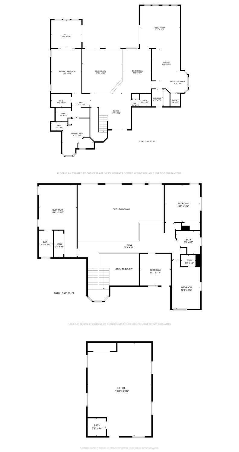
This Riverfront Luxury Estate on the Loxahatchee River with Ocean Access is offered at $3,999,999. Experience the ultimate in waterfront living with this stunning estate on the Northwest Fork of the Loxahatchee River in Jupiter. Offering 5,455 sq ft of living space and 6688 sq ft total on a 3/4-acre lot, this 5 bedroom, 4 full and 2 half-bathroom residence blends elegance, privacy, and convenience. With river views, soaring ceilings, and an open, airy layout, this home is designed for sophisticated living. Step outside to your private tropical paradise, where lush landscaping surrounds a resort-style pool with a dramatic rock waterfall. The outdoor summer kitchen, complete with a full cabana bath and pizza oven creates the perfect setting for alfresco dining and entertaining. A private dockwith a boat lift, direct ocean access with the Jupiter Inlet just minutes away. A detached flex space with ½ bath offers endless possibilities.It can serve as a home office, gym, man cave, home theater, be converted into a two-car garage or a guest house. Freshly painted, this estate provides a blank canvas for its next owner to customize and make their own. Ideally located just minutes from I-95 and the Florida Turnpike, this home offers easy access to world-class shopping, dining, beautiful beaches, and the golfing mecca of Palm Beach County. Plus, it's conveniently close to major airports, making travel effortless. A rare opportunity to own a piece of paradise!Schedule your private tour today!
View Virtual Tour18907 Se Loxahatchee River Road
Cable, 3-Phase Electric, Gas Bottle, Public Sewer, Public Water
Navigable, Ocean Access, One Fixed Bridge, River
Bar, Built-in Shelves, Closet Cabinets, Ctdrl/Vault Ceilings, Entry Lvl Lvng Area, Foyer, French Door, Cook Island, Laundry Tub, Pantry, Roman Tub, Sky Light(s), Split Bedroom, Volume Ceiling, Walk-in Closet, Wet Bar
Auto Garage Open, Dishwasher, Dryer, Range - Gas, Refrigerator, Washer, Water Heater - Gas
Auto Sprinkler, Cabana, Covered Patio, Deck, Extra Building, Open Patio, Open Porch, Summer Kitchen, Well Sprinkler
The Jupiter River and the Loxahatchee basin was used by British aviators as a training area for small see planes during the winter of 1916-1917.
Jupiter Florida is home to some of the finest golf in South Florida head for 18 hole golf course located at Jupiter Dunes Golf Club. It is located right on the Jupiter River estuary and offers golf for both the seasoned veteran and novel enthusiast.
If you're looking for an exploration adventure in Jupiter, check out the Jupiter Inlet Lighthouse. The Lighthouse was designed by Civil War hero General George Meade and is operated by the Coast Guard since 1860. Tours of this 105-foot-tall landmark unfold every half hour. There is a small museum that tells about efforts to restore the lighthouse to the way it looked from 1860 to 1918.
		
			Add as Favorite
	
	
		
			Add as Favorite
	
	
		


			Add as Favorite
	
	
		


			Add as Favorite
	
	
All listings featuring the BMLS logo are provided by Beaches MLS Inc. Copyright 2025 Beaches MLS. This information is not verified for authenticity or accuracy and is not guaranteed.
© 2025 Beaches Multiple Listing Service, Inc. All rights reserved. 
Listing information last updated on November 4th, 2025 at 7:15am CST.