1. Home
  2. Search Listings
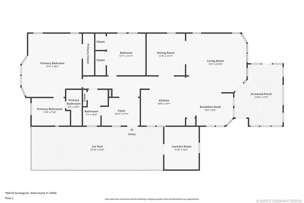
  3. 7924 Saratoga Drive Hobe Sound, FL - 33455
  • MLS® #: M20054047
  • 7924 Saratoga Drive
  • Hobe Sound, FL 33455
  • $340,000
  • 2 Beds, 2 Bath, 1,513 SqFt
  • Residential

Fabulously updated 2 bed, 2 full bath manufactured home in the active, 55+ community of Cambridge. Tremendous views of the golf course. NEW METAL ROOF in a month!! Newly installed structural sheathing & siding for the entire house. 34 new windows letting in an abundance of natural light! New drywall, new Calif knockdown ceilings, new doors, new waterproof laminate flooring & baseboards, new appliances, all new electrical outlets including interior washer/dryer hookup, new ceiling fans & light fixtures, new kitchen & bath cabinets. New sinks, corner tub & shower/tub insert. New quartz counters in kitchen & baths. New solatube modern skylight. 10 palms & shrubs planted. New paver stone patio. Pets allowed. Low HOA. Close to beaches, shopping, markets, restaurants. All this, and you own the LAND!!

Essential Information

  • MLS® #M20054047
  • Price$340,000
  • CAD Dollar$463,589
  • UK Pound£254,032
  • Euro€291,975
  • HOA Fees125
  • Bedrooms2
  • Bathrooms2.00
  • Full Baths2
  • Square Footage1,513
  • Year Built1986
  • TypeResidential
  • Sub-TypeManufactured Home
  • StyleOther
  • StatusActive

Community Information

  • Address7924 Saratoga Drive
  • SubdivisionCambridge
  • CityHobe Sound
  • CountyMartin
  • StateFL
  • Zip Code33455

Area

14-Hobe Sound Stuart S of Cove Rd

Amenities

  • Parking Spaces2
  • ViewGolf Course, Garden, Pond
  • Has PoolYes
  • PoolCommunity

Utilities

Sewer Connected, Water Connected

Features

Billiard Room, Clubhouse, Library, Non-Gated, Pool, Shuffleboard, Street Lights

Parking

Attached Carport, Covered, Driveway

Interior

  • InteriorVinyl
  • Interior FeaturesEat-in Kitchen
  • HeatingCentral, Electric
  • CoolingCentral Air, Electric
  • # of Stories1

Appliances

Dishwasher, Electric Range, Disposal, Microwave, Refrigerator

Exterior

  • ConstructionManufactured
  • Office: Coldwell Banker Realty

Property Location

Please provide a valid email address.

7924 Saratoga Drive on www.intracoastalcanalhomes.com

Offered at the current list price of $340,000, this home for sale at 7924 Saratoga Drive features 2 bedrooms and 2 bathrooms. This real estate listing is located in Cambridge of Hobe Sound, FL 33455 and is approximately 1,513 square feet. 7924 Saratoga Drive is listed under the MLS ID of M20054047 and has been on the Hobe Sound real estate market for days.

Facts About Hobe Sound, FL

When visiting Hobe Sound Florida make sure you visit the great outdoor park and natural preserve of Jonathan Dickinson State Park.  

Northeast across the Jupiter Inlet from Jupiter is the southern tip of Jupiter Island. Expansive and exquisite often retreat from the road behind screens of vegetation, and at the north end of the island turtles come to nest in a wildlife refuge. To the west, on the mainland, is the little community of Hobe Sound.

The best way to get to Jupiter Island and Hobe Sound from Jupiter is to drive north 5 miles on Interstate 95 to Indiantown Road. From there, head east Federal Highway (U.S. 1), then north on U.S. 1.

The data relating to real estate for sale on this web site comes in part from a cooperative data exchange program of the Realtor® Association of Martin County, Inc. MLS. Real estate listings held by brokerage firms other than Waterfront Properties and Club Communities are marked with the IDX logo (Broker Reciprocity) or name and detailed information about such listings includes the name of the listing brokers. Data provided is deemed reliable but is not guaranteed.

IDX information is provided exclusively for consumers' personal, non-commercial use, that it may not be used for any purpose other than to identify prospective properties consumers may be interested in purchasing.

Copyright 2026 Realtor® Association of Martin County, Inc. MLS. All rights reserved.

Listing information last updated on March 4th, 2026 at 9:47pm CST.